ΤΟ ΣΠΙΤΙ ΣΤΗΝ ΣΚΙΑ ΤΟΥ

Τυπολογία: ανακατασκευή
Èτος: 2025
Τοποθεσία: Αθήνα
Εμβαδόν: 65 m2
Κατάσταση: ολοκληρώθηκε
Φωτογραφίες: Νίκος Κουκλάκης

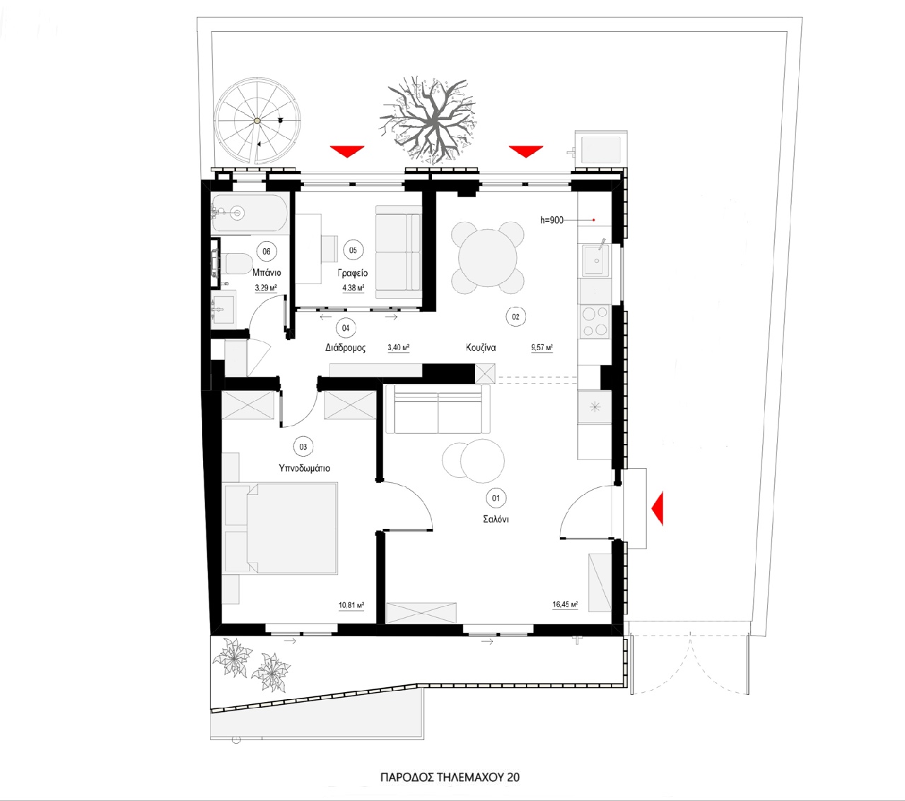
Φέτος ανακαινίσαμε ένα μικρό μονοώροφο σπίτι στην Αθήνα. Το σπίτι χτίστηκε τη δεκαετία του 1950. Προοριζόταν για μία οικογένεια και αποτελούνταν από σαλόνι, υπνοδωμάτιο, βιβλιοθήκη, κουζίνα και μπάνιο. Η νότια πρόσοψή του βλέπει σε μια στενή πάροδο, ενώ η βόρεια σε έναν μικρό κήπο με μια παλιά συκιά.
Πολυ συχνά τέτοια σπίτια κατεδαφίζονται και αντικαθίστανται απο πολυκατοικίες — σβήνοντας τον χαρακτήρα της γειτονιάς.
Γύρω από το σπίτι κυριαρχεί η χαμηλή δόμηση των δεκαετιών 1950–1970, χαρακτηριστική του πρώιμου αθηναϊκού μοντερνισμού. Οι τυπικές λεπτομέρειές της — τα αρχικά κάγκελα των παραθύρων, τα ξύλινα παντζούρια, τα μωσαϊκά δάπεδα, οι μαρμάρινοι νιπτήρες και τα διάτρητα τσιμεντότουβλα (κλωστρά)— θυμίζουν μια φθίνουσα αστική ταυτότητα, την εικόνα της κατάφυτης αθηναϊκής προαστιακής γειτονιάς, την ατμόσφαιρα της οποίας θα θέλαμε να διατηρήσουμε.
Αυτή η αρχή μας καθοδήγησε όταν σκεφτόμασταν πώς να μετατρέψουμε τα ερείπια σε σύγχρονο κατοικήσιμο χώρο.

Η ανακαίνιση δεν επηρέασε τις φέρουσες κατασκευές και μας επέτρεψε να διατηρήσουμε πολλές αυθεντικές λεπτομέρειες — μεταξύ άλλων τα τζάμια της εποχής τα δάπεδα και την πόρτα της εισόδου . Όλα τα παράθυρα μετατράπηκαν σε συρόμενες πόρτες, και ο κήπος με τη συκιά έγινε σχεδόν μέρος του εσωτερικού χώρου.

Το σαλόνι συνδέθηκε με την κουζίνα, όπου να μπορείς να μαγειρεύεις κοιτάζοντας έξω από το παράθυρο.
Από το μεσοπάτωμα προέκυψε ένα επιπλέον παιδικό υπνοδωμάτιο.
Τέλος, το σπίτι απέκτησε μια διάτρητη κεραμική πρόσοψη (ажурный), που προστατεύει τον ιδιωτικό χώρο από την πάροδο, ενώ δημιουργεί σκιά στη νότια πλευρά του σπιτιού. Στο μέλλον αυτή η κεραμική επιφάνεια θα καλυφθεί από κληματαριά .
Στην ταράτσα οδηγεί πλέον μια σπειροειδής σκάλα και προβλέπεται στο μέλλον να δημιουργηθεί μια καλοκαιρινή βεράντα.
Με μια τόσο διακριτική ανακαίνιση, το κτίριο γίνεται κατάλληλο για τη σύγχρονη ζωή, αναδεικνύοντας τα ιδιαίτερα χαρακτηριστικά του περιβάλλοντος αστικού τοπίου.

Scroll to top